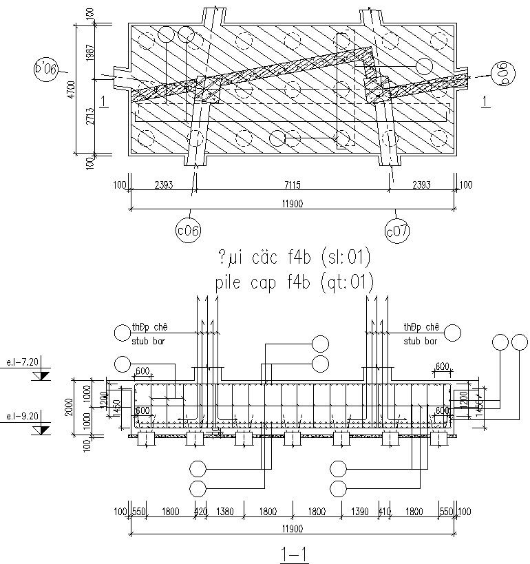
Sectional Elevation of stub column.
Description
This Architectural Drawing of AutoCAD 2d drawing of Sectional Elevation of stub column. A stub column is a type of column whose length is short and baseless which means do not have a foundation and footing as its rests on a beam or slab. It acts as a point load on the beam. A stub column does not fail by buckling because of its short length and It is constructed between one floor only. For more details and information download the drawing file.

Uploaded by:
Eiz
Luna

