Section of pile cap details.
Description
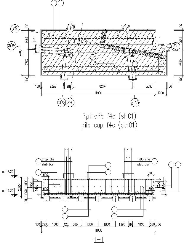
This Architectural Drawing is AutoCAD 2d drawing is Section of pile cap details. Design of Pile Cap is consider 150mm offset from the pile and space between piles as 2.5 times pile diameter. Effective depth, d = 1000-50-20/2 = 940 mm > 750mm; (2.5×600/2) Ok. The critical section of the pile shall be considered as 20% of the diameter of the pile inside of the face of the pile. Generally, its thickness should not be less than 500mm which may be reduced to 300mm at the free edges. 6. The piles should atleast 50mm into the pile cap. For more details and information download the drawing file.

Uploaded by:
Eiz
Luna

