Elevation of bathroom with detailing
Description
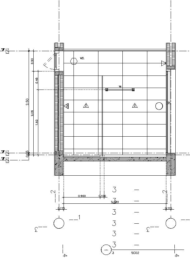
This architectural drawing is Elevation of bathroom with detailing. In this drawing there were given attached toilet and bathroom with glass partition wall. There were size of door is 0.50m given. Total length of bathroom is 2.520m given. For more details and information download the drawing file.
Uploaded by:
viddhi
chajjed
