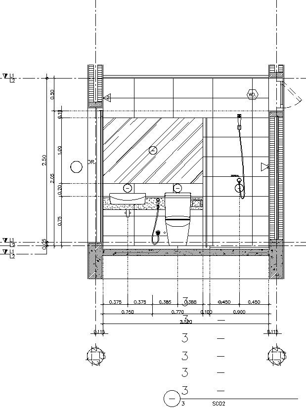
Side view of toilet with detailing
Description
This architectural drawing is Side view of toilet with detailing. In this drawing there were height of sink is 0.75m, glass size is 1.50x1m, total height of toilet is 2.50 and total length of the section is 2.520m. For more details and information download the drawing file.
Uploaded by:
viddhi
chajjed

