Top view of attached toilet-bathroom
Description
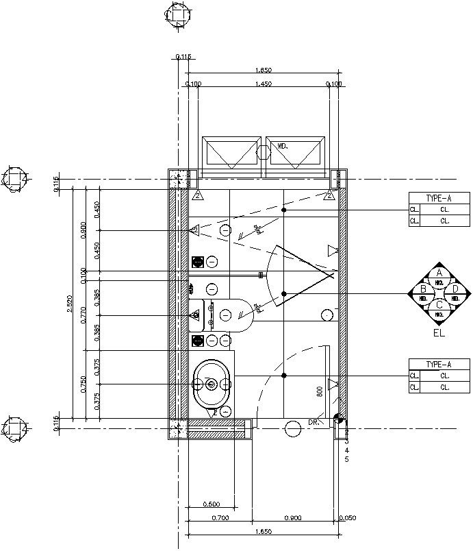
This architectural drawing is Top view of attached toilet-bathroom. In this drawing there were size of bathroom is 1.650x2.520m. There were size of door is 0.900m. Wall thickness is 0.300m given. For more details and information download the drawing file.
Uploaded by:
viddhi
chajjed
