Design of double section ventilation
Description
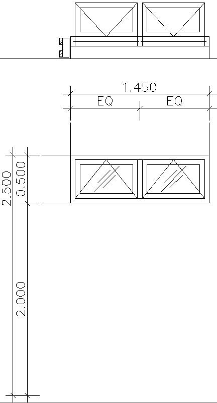
This architectural drawing is Design of double section ventilation. In this drawing there were double section glass paneled ventilation is given. The size of the ventilation is 1.450x0.500m. For more details and information download the drawing file.
File Type:
DWG
File Size:
293 KB
Category::
Interior Design
Sub Category::
House Interiors Projects
type:
Gold
Uploaded by:
viddhi
chajjed

