Section drawing of 2 storey house
Description
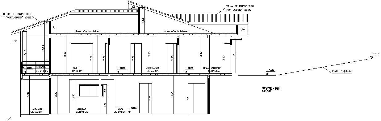
This architectural drawing is Section drawing of 2 storey house. In this section there were given section of door, window, porch area, interior area of house with dimensions and detailing. There were height of the door is 2.20m. For more details and information download the drawing file.
Uploaded by:
viddhi
chajjed

