Section drawing of house
Description
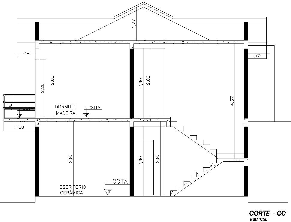
This architectural drawing is Section drawing of house. In this section there were given details of roof, porch, distance between two slabs, stair section etc. The distance between two slabs is 2.80m. The height of the door is 2.20m. For more details and information download the drawing file.
Uploaded by:
viddhi
chajjed
