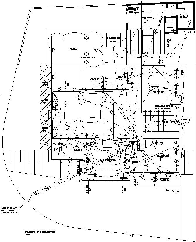
Detail Electrical drawing of ground floor of a house.
Description
This Architectural Drawing is AutoCAD 2d drawing of a Detail Electrical drawing of ground floor of a house. The electrical plan is sometimes called as electrical drawing or wiring diagram. It is a type of technical drawing that delivers visual representation and describes circuits and electrical systems. It consists of electrical symbols and lines that showcase the engineer's electrical design to its clients. For more details and information download the drawing file.

Uploaded by:
Eiz
Luna
