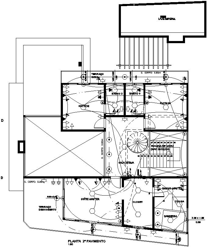
Second floor pavement electric layout.
Description
This Architectural Drawing is AutoCAd 2d drawing of Second floor pavement electric layout. An average electrical drawing or plan consists of the following parts: Plot plan which shows building location and outside electrical wiring. Floor plan in which there are electrical systems on every floor. Panelboards are shown in power riser diagrams. For more details and information download the drawing file.

Uploaded by:
Eiz
Luna
