Modern house plan with roof design
Description
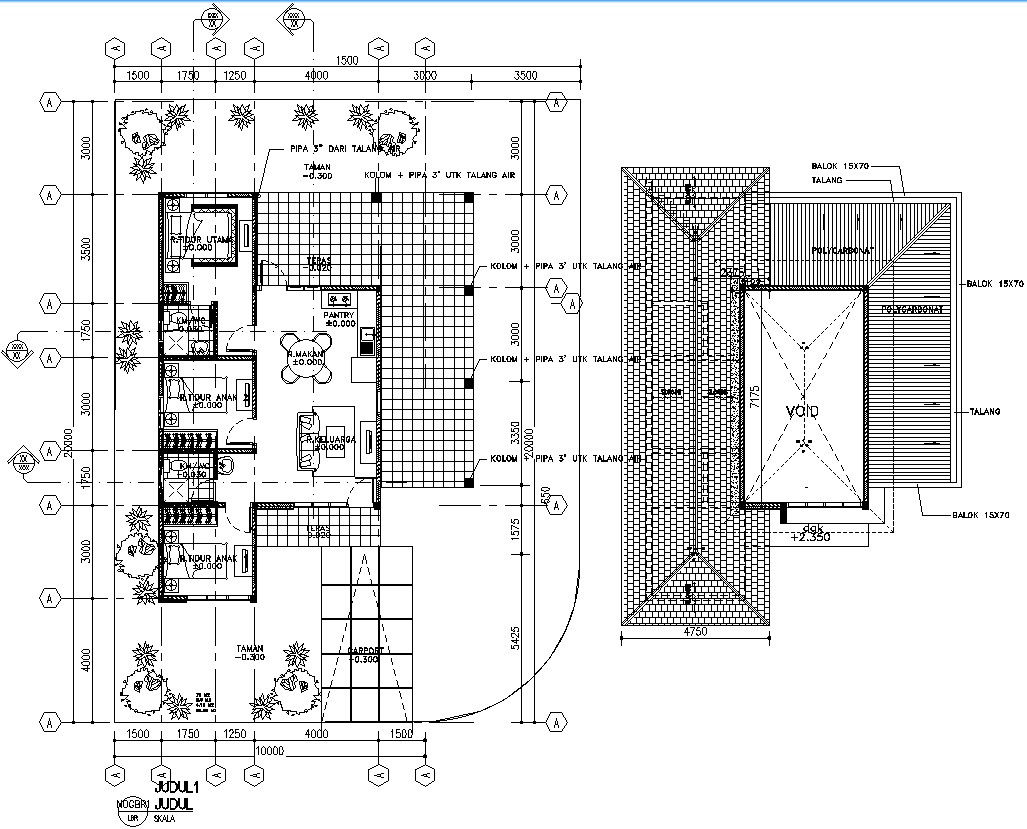
This architectural drawing is Modern house plan with roof design. In this drawing there were size of the plot is 15000x20000mm. There were distance between plot boundary and constructed wall is 1500mm. In this drawing there were also given roof details with dimensions. For more details and information download the drawing file.
Uploaded by:
viddhi
chajjed
