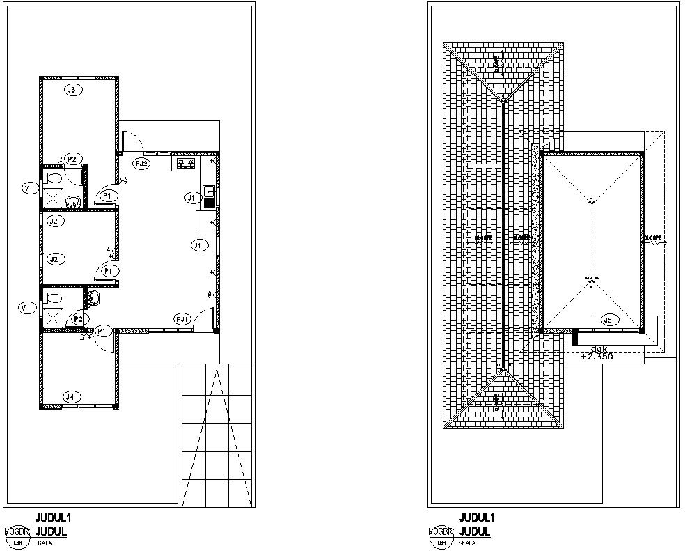
Simple floor plan with roof detail plan
Description
This architectural drawing is Simple floor plan with roof detail plan. In this drawing there were given living room, kitchen, master bedroom with attached toilet bathroom, bedroom, common toilet bathroom etc. with detailing. For more details and information download the drawing file.
Uploaded by:
viddhi
chajjed

