12x14m house plan first floor sanitary layout 2d drawing
Description
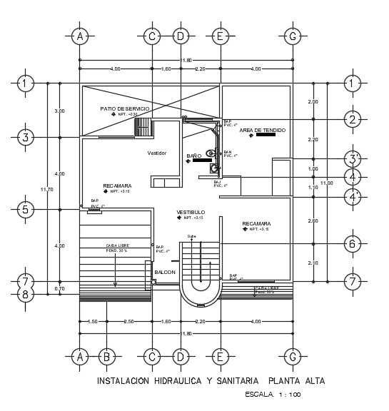
12x14m house plan first floor sanitary layout 2d drawing is given. In this first floor, the water line is provided to the common bathroom.
Uploaded by:
12x14m house plan first floor sanitary layout 2d drawing is given. In this first floor, the water line is provided to the common bathroom.
Uploaded by: