Stair detail layout of pent house AutoCAD drawing
Description
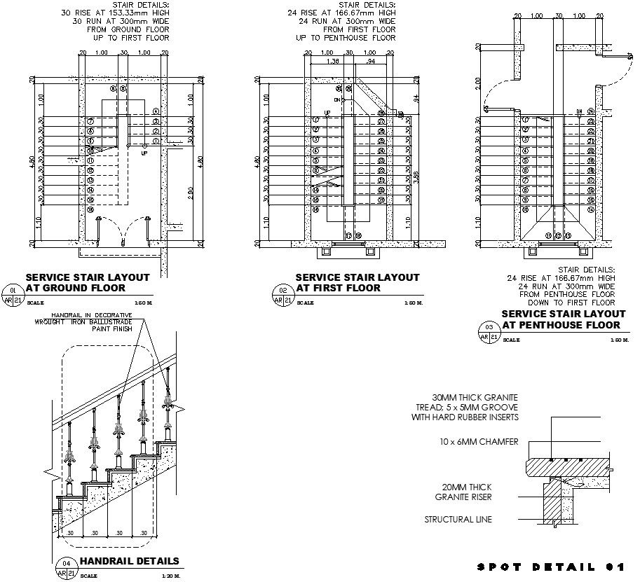
This architectural drawing is Stair detail layout of pent house AutoCAD drawing. In this drawing there were handrail details, service stair layout of ground floor, service stair layout of first floor etc. are available. For more details and information download the drawing file.
File Type:
DWG
File Size:
39.5 MB
Category::
Interior Design
Sub Category::
House Interiors Projects
type:
Gold
Uploaded by:
viddhi
chajjed

