First floor plan of warehouse with detail AutoCAD drawing
Description
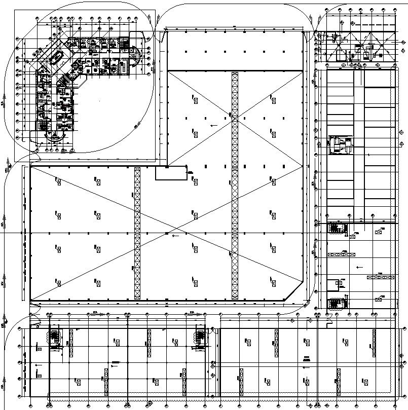
This architectural drawing is First floor plan of warehouse with detail AutoCAD drawing. In this drawing there were skylight are given. There were also pump room, storage area, mechanical room, staircase, lift section, smoke room etc. are available with details. For more details and information download the drawing file.
Uploaded by:
viddhi
chajjed

