First floor furniture with detail AutoCAD drawing
Description
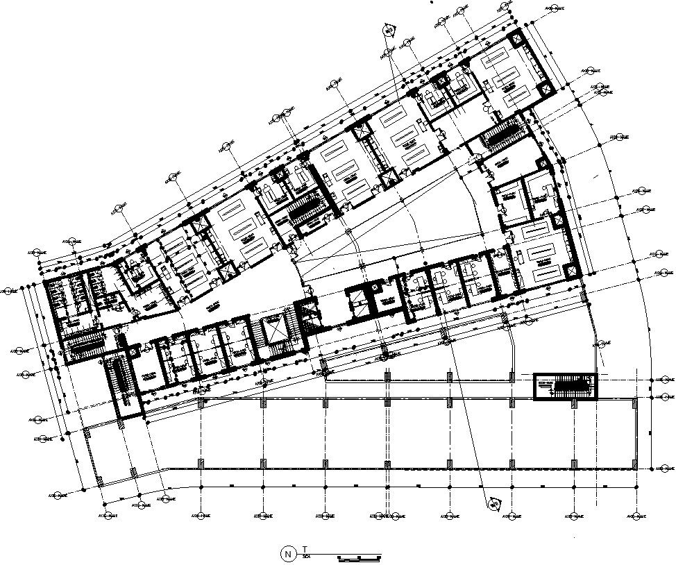
This architectural drawing is First floor furniture with detail AutoCAD drawing. In this drawing there were office furniture, sanitary fittings, staircase details, lift section, etc. are available with details. For more details and information download the drawing file.
Uploaded by:
viddhi
chajjed

