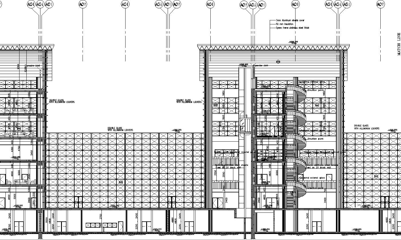
Commercial building design with detail AutoCAD drawing
Description
This architectural drawing is Commercial building design with detail AutoCAD drawing. In this drawing there were side view of the building is given. There were staircase, lift section, door section, window section etc. are available. This is G+5 storey building. For more details and information download the drawing file.
Uploaded by:
viddhi
chajjed

