2D plan of first floor plan of college in AutoCAD
Description
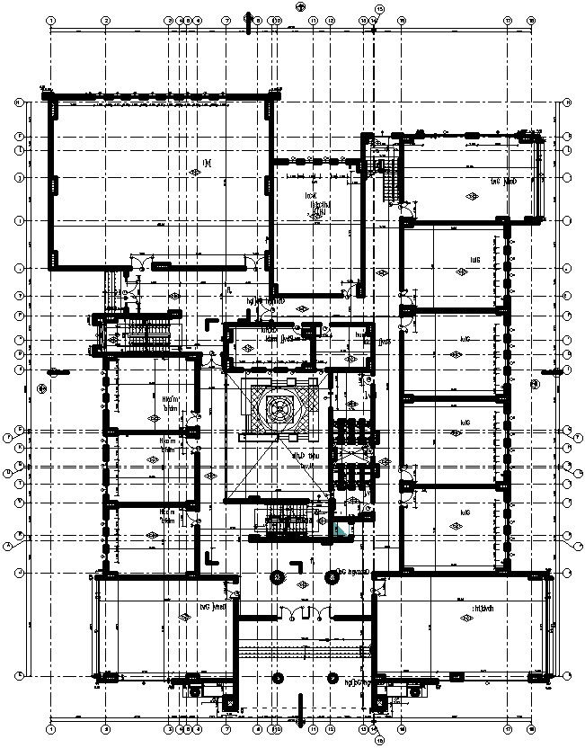
This architectural drawing is 2D plan of first floor plan of college in AutoCAD. In this drawing there were reading room, classrooms, staff room, staircase, lift section etc. are given with details. For more details and information download the drawing file.
Uploaded by:
viddhi
chajjed

