Detail drawing of ground floor of university with detail AutoCAD drawing
Description
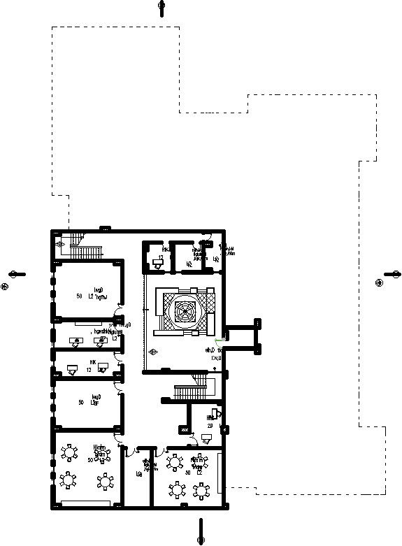
This architectural drawing is Detail drawing of ground floor of university with detail AutoCAD drawing. In this drawing there were canteen area, waiting area, staircase, staff room, offices, etc. are given with details. For more details and information download the drawing file.
Uploaded by:
viddhi
chajjed

