2D drawing of Third floor plan of university in AutoCAD
Description
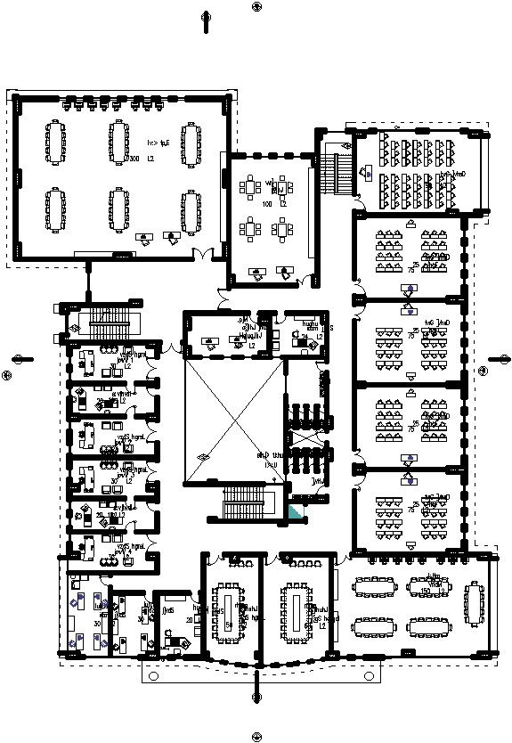
This architectural drawing is 2D drawing of Third floor plan of university in AutoCAD. In this drawing there were classrooms, offices, staff rooms etc. given with details. For more details and information download the drawing file.
Uploaded by:
viddhi
chajjed

