Floor plan of commercial building with detail AutoCAD drawing
Description
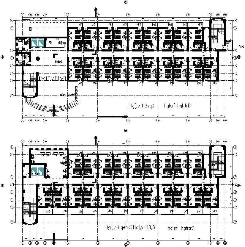
This architectural drawing is Floor plan of commercial building with detail AutoCAD drawing. In this drawing there were offices, attached washrooms, staircase, lift section etc. are given with detail and drawing. For more details and information download the drawing file.
Uploaded by:
viddhi
chajjed

