Terrace floor Framing layout of a university
Description
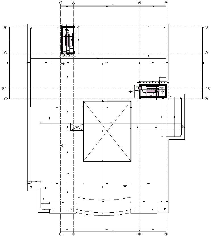
This Architectural Drawing is AutoCAD 2d drawing of Terrace floor Framing layout of a university. A framing plan is a plan that's designed to show the locations, materials (e.g. steel, timber), sizes, spacings and numbers of the structural elements that will be used to build your house. Floor framing is typically used to described floors made from wood. Floor framing includes all structural components and fasteners used to construct floors in a house or commercial building. This term is typically only used to describe floors made from wood, as opposed to those constructed using concrete slabs. For more details and information download the drawing file.
File Type:
DWG
File Size:
19.9 MB
Category::
Interior Design
Sub Category::
Education Interiors Design Projects
type:
Gold

Uploaded by:
Eiz
Luna

