2D floor plan of arts college in Detail AutoCAD drawing
Description
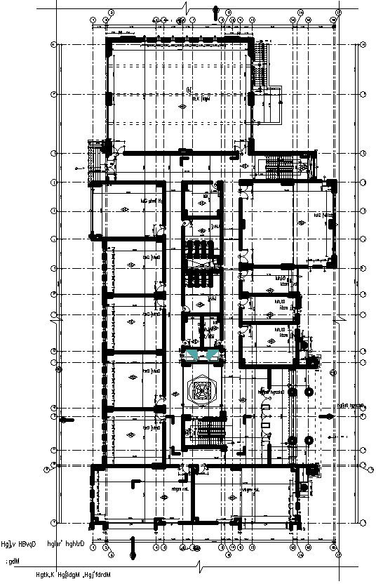
This architectural drawing is 2D floor plan of arts college in Detail AutoCAD drawing. In this drawing there were auditorium, classrooms, staff room, general washrooms, offices, etc. are given with details. For more details and information download the drawing file.
Uploaded by:
viddhi
chajjed

