Floor plan of arts university in Detail AutoCAD drawing
Description
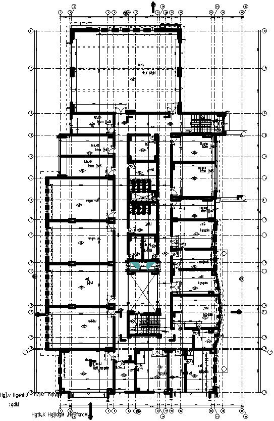
This architectural drawing is Floor plan of arts university in Detail AutoCAD drawing. In this drawing there were large classrooms, small classrooms, auditorium, general washrooms, staircase, staff room, offices, lift section etc. are given with details. For more details and information download the drawing file.
Uploaded by:
viddhi
chajjed
