Third floor plan of arts university in detail AutoCAD plan
Description
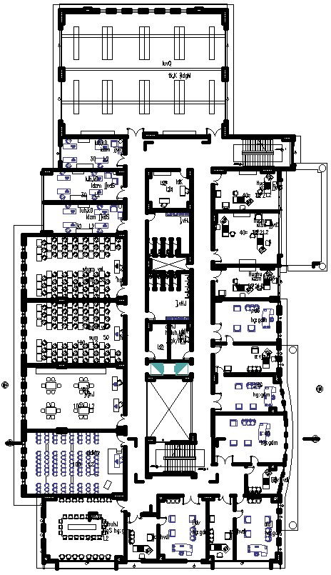
This architectural drawing is Third floor plan of arts university in detail AutoCAD plan. In this drawing there were interior is given of all sections like offices, laboratory, staff room, meeting room, classroom etc. with details. For more details and information download the drawing file.
Uploaded by:
viddhi
chajjed

