Detail Floor plan of arts university in AutoCAD 2D
Description
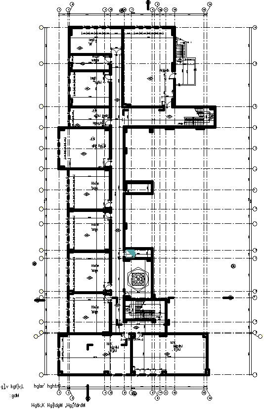
This architectural drawing is Detail Floor plan of arts university in AutoCAD 2D. In this drawing there were classrooms, reading room, staircase, lift sections etc. are given with details. For more details and information download the drawing file.
Uploaded by:
viddhi
chajjed

