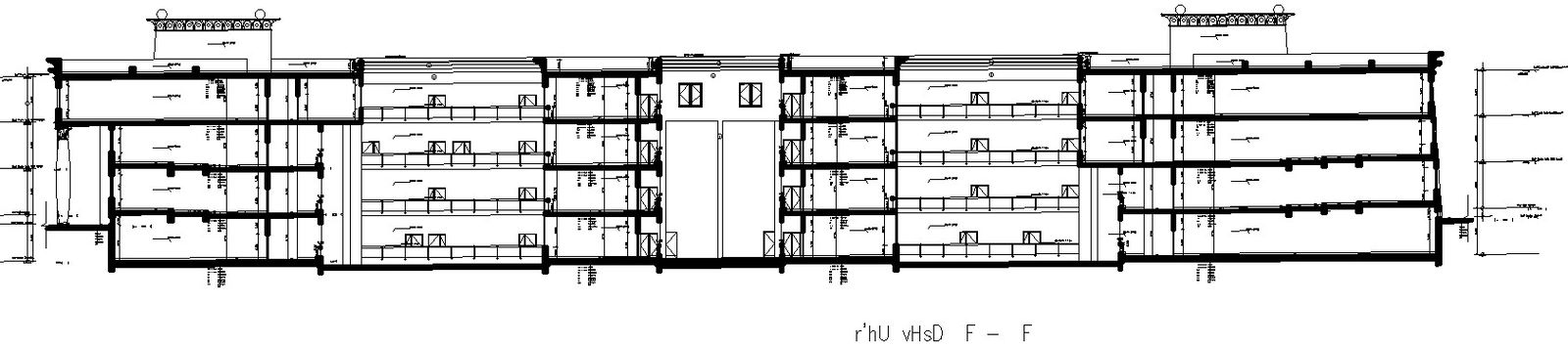
Front Sectional Elevation with Dimension details of a Educational Building.
Description
This Architectural Drawing is AutoCAD 2d drawing of Front Sectional Elevation with Dimension details of a Educational Building. Front elevation refers to the side of the house which includes the entrance door, windows or front porch. This may be the side of the house that faces the road or has a front yard. This is sometimes known as the 'entry elevation'. A plan drawing is a drawing on a horizontal plane showing a view from above. An Elevation drawing is drawn on a vertical plane showing a vertical depiction. A section drawing is also a vertical depiction, but one that cuts through space to show what lies within. For more details and information download the drawing file.

Uploaded by:
Eiz
Luna

