Detail drawing of reinforcement detail of manhole in AutoCAD
Description
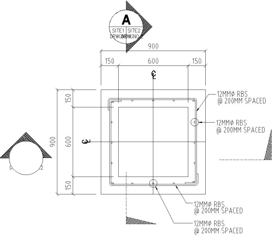
This architectural drawing is Detail drawing of reinforcement detail of manhole in AutoCAD. In this drawing there were size of the section is 900x900mm is given. There were 12mm diameter reinforcement bars are placed at 200mm c/c. For more details and information download the drawing file.
File Type:
DWG
File Size:
1.4 MB
Category::
Construction
Sub Category::
Construction Detail Drawings
type:
Gold
Uploaded by:
viddhi
chajjed

