Manhole detail drawing in AutoCAD 2D
Description
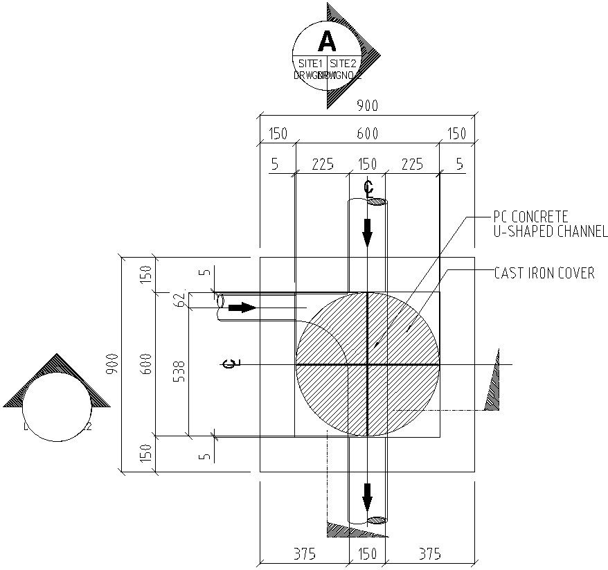
This architectural drawing is Manhole detail drawing in AutoCAD 2D. In this drawing there were two pipes are connected with manhole. There were size of the manhole is 900x900mm given. There were diameter of the pipe is 150mm diameter given. For more details and information download the drawing file.
File Type:
DWG
File Size:
1.4 MB
Category::
Construction
Sub Category::
Construction Detail Drawings
type:
Gold
Uploaded by:
viddhi
chajjed

