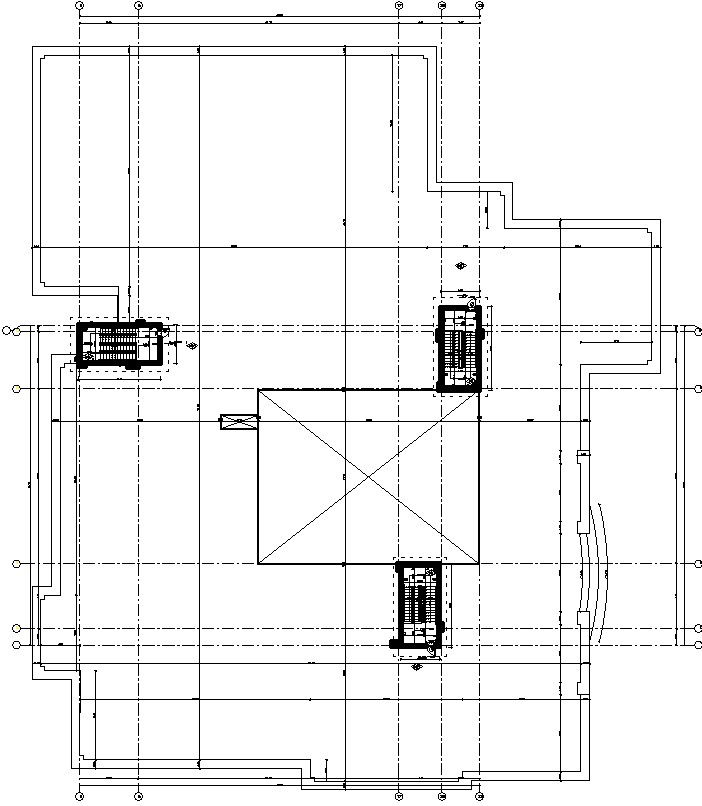
Terrace plan with detail dimensioning.
Description
This Architectural Drawing is AutoCAD 2d drawing of Terrace plan with detail dimensioning. Detail of terrace floor plan of a building. This working drawing includes all dimensions, levels, section line, centre line. Also include sloping roof detail with manglor tiles, water slope detail, HVAC wall, roof drain and etc. Plan Dimension means the linear horizontal dimensions of a building or structure, at a given level, between the outside surfaces of its exterior walls. A terrace is an external, raised, open, flat area in either a landscape (such as a park or garden) near a building, or as a roof terrace on a flat roof. For more details and information download the drawing file.

Uploaded by:
Eiz
Luna

