Ground Floor Furniture Layout Plan with Seating Details AutoCAD 2D
Description
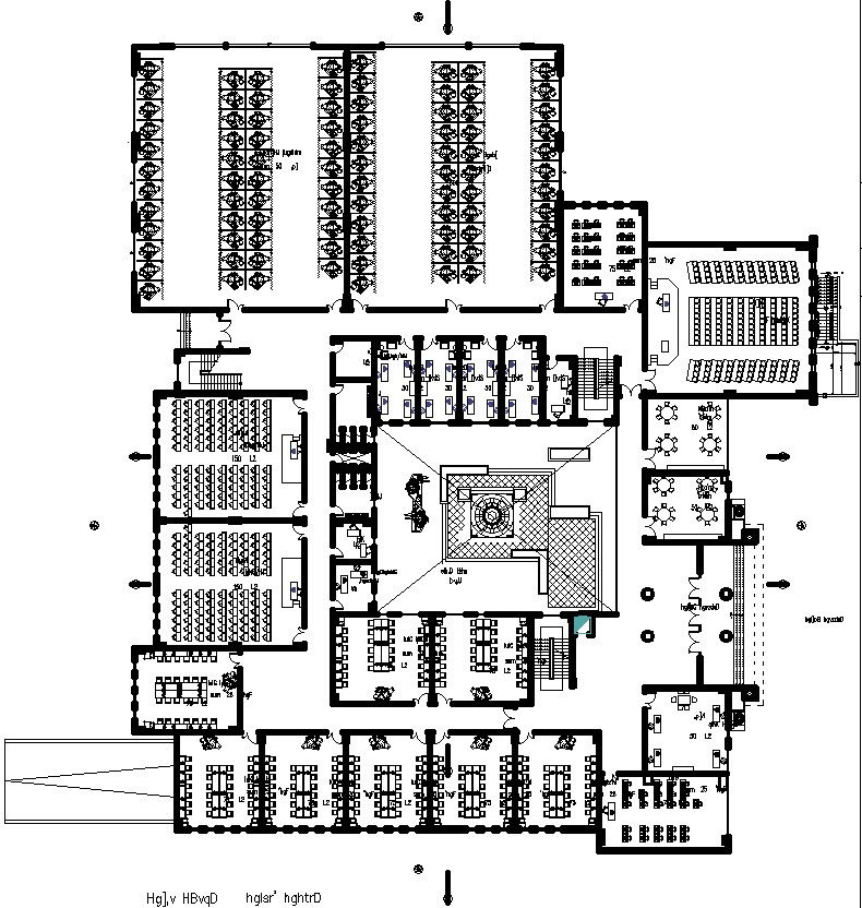
This AutoCAD 2D drawing presents a ground-floor furniture layout plan prepared for interior space planning and functional arrangement. The drawing shows a detailed top view of furniture placement across the ground floor, including seating arrangements, workstations, tables, circulation paths, and activity zones. Furniture sizes, orientation, and spacing are clearly illustrated to help understand movement flow and space utilization. Such layouts are essential for visualizing how interior spaces will function once furnished, ensuring comfort, accessibility, and efficient use of available floor area in residential, commercial, or institutional buildings.
The DWG file is suitable for architects, interior designers, civil engineers, planners, and CAD professionals working on AutoCAD-based projects. This ground-floor furniture layout drawing helps coordinate interior planning with architectural layouts without altering structural elements. The clean 2D linework allows easy editing, scaling, and adaptation to different design requirements. Access through a cadbull.com subscription enables professionals to integrate accurate furniture layout drawings into AutoCAD, 3D Max, Revit, and Google SketchUp workflows for effective interior design presentation and planning.
File Type:
DWG
File Size:
28.2 MB
Category::
Interior Design
Sub Category::
Showroom & Shop Interior
type:
Gold

Uploaded by:
Eiz
Luna

