Terrace plan of pharmacy college with detail AutoCAD drawing
Description
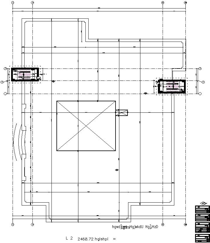
This architectural drawing is Terrace plan of pharmacy college with detail AutoCAD drawing. In this drawing there were floor plan of terrace is given with details. There were parapet wall, room, staircase etc. are given. For more details and information download the drawing file.
Uploaded by:
viddhi
chajjed

