Detail drawing of general toilet in AutoCAD 2D
Description
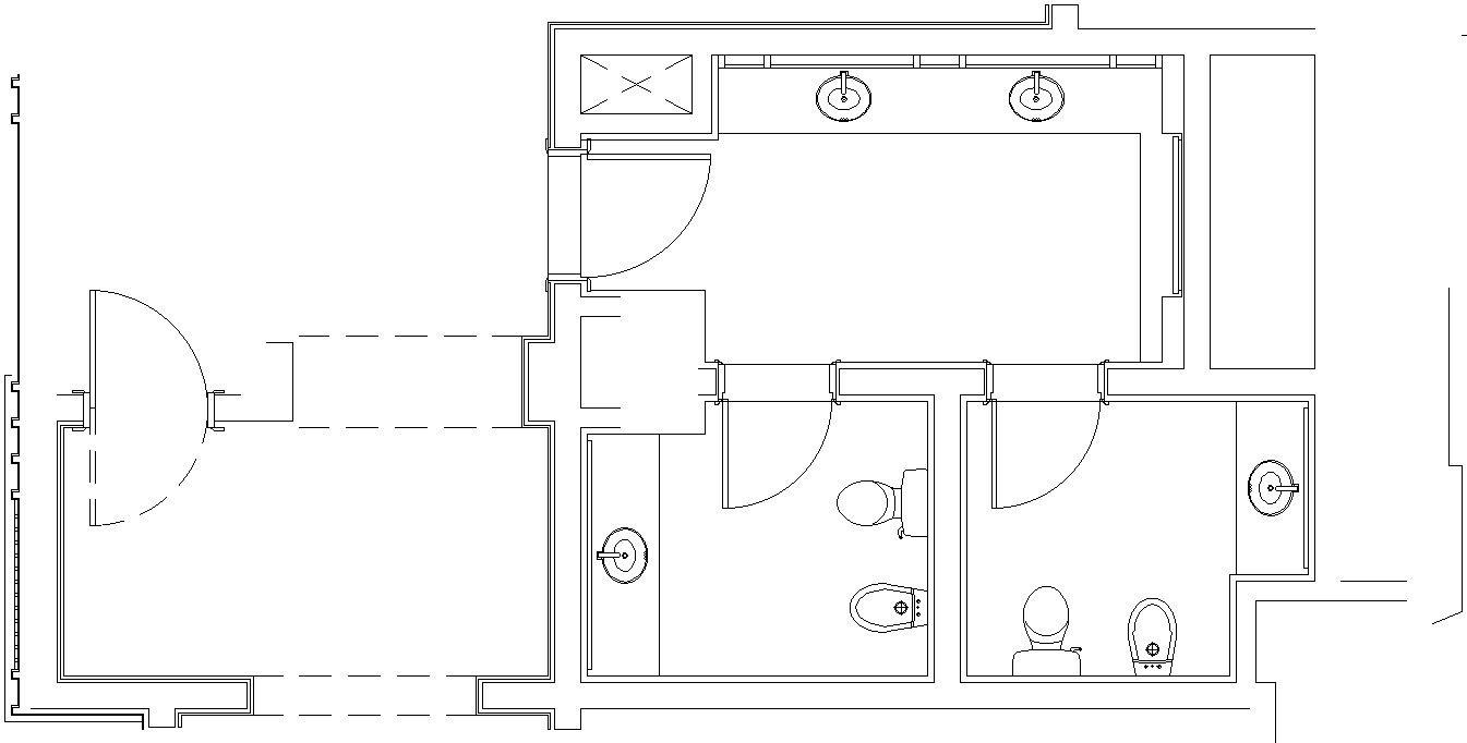
This architectural drawing is Detail drawing of general toilet in AutoCAD 2D. In this drawing there were two washrooms are given with attached washbasins. For more details and information download the drawing file. Thank you for visiting our website cadbull.
File Type:
DWG
File Size:
18.3 MB
Category::
Interior Design
Sub Category::
Architectural Bathrooms And Interiors
type:
Gold
Uploaded by:
viddhi
chajjed

