18x11m house cum local shop structural layout
Description
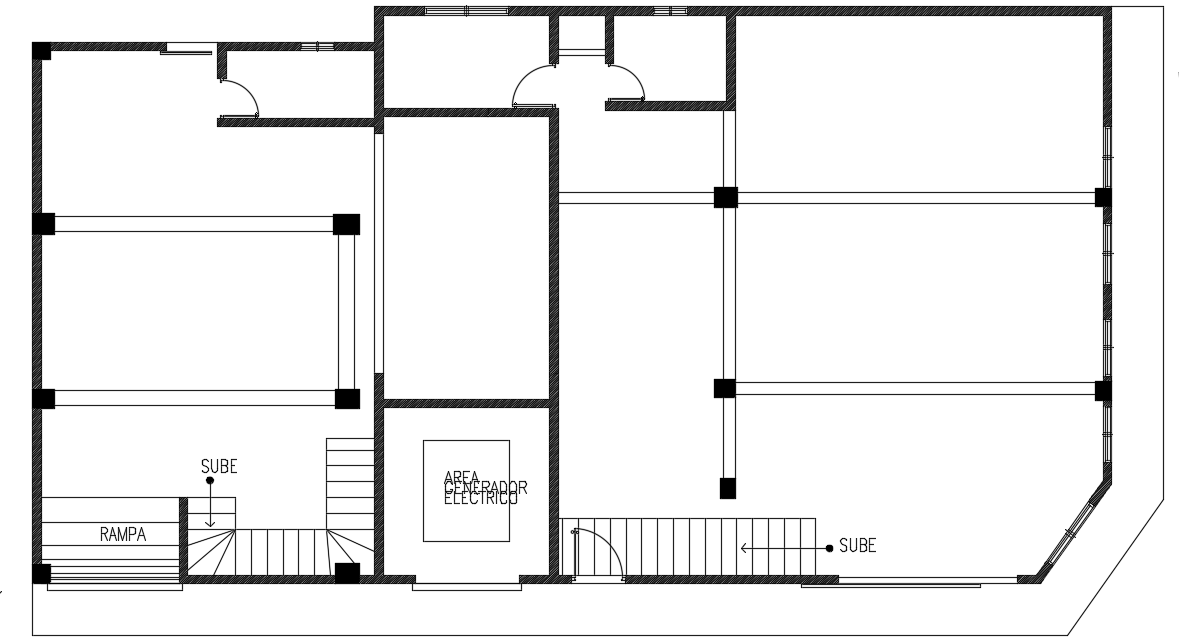
18x11m house cum local shop structural layout is given in this model. Here, the ground floor is given. Ramp is provided to the local shop. The column location, beam layout, and staircase view is given. Here, two local shops are available. The shop 1 area is 70m2. The local shop 2 area is 90.25m2.
Uploaded by:
