18x11m local shop with house plan ground floor layout
Description
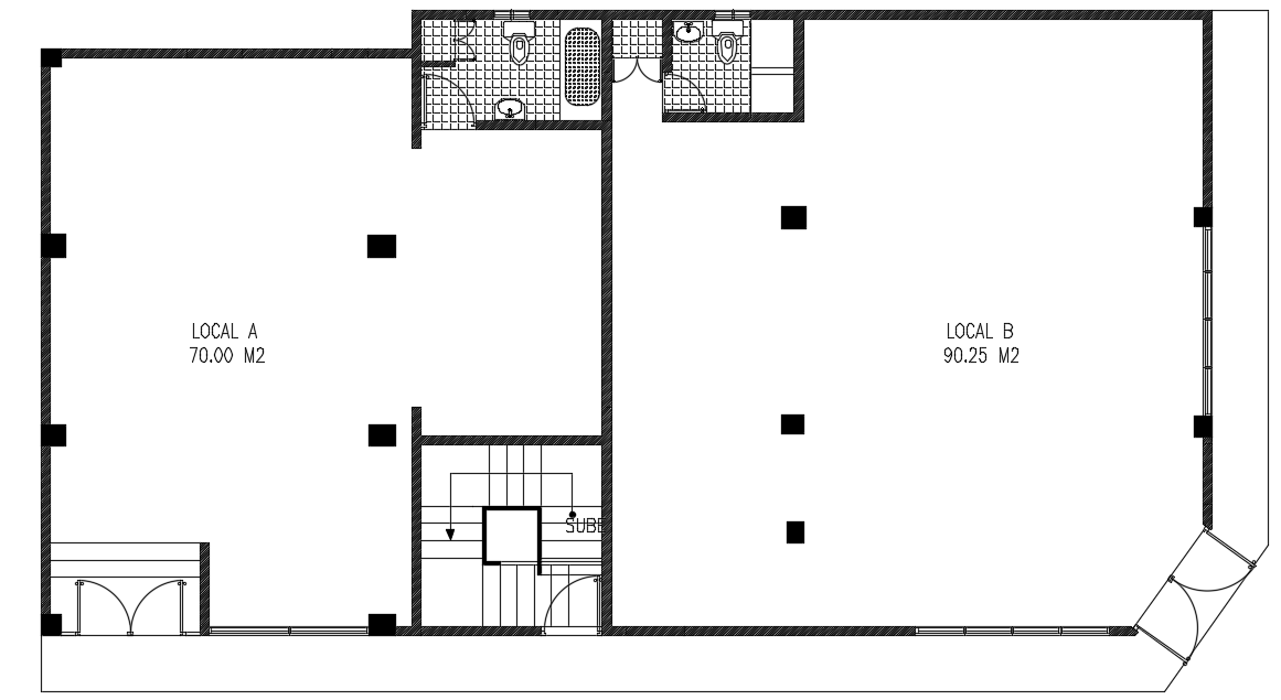
18x11m local shop with house plan ground floor layout is given in this file. This is two story residential cum local shop building. The area of the local shop 1 and 2 are 70m2, 90.25m2 respectively. Here, each local shop is provided with the attached bathroom. A washbasin, and water closet is available on each bathroom.
Uploaded by:

