18x11m first floor house plan is given in this model
Description
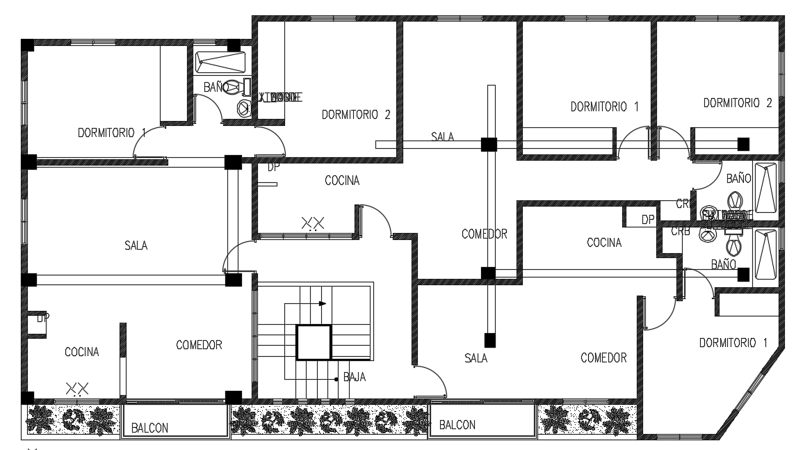
18x11m first floor house plan is given in this model. Here, three houses are available. Two houses are given with 2bhk. One house is given with 1bhk. The single bedroom house plan is provided with the attached bathroom.
Uploaded by:

