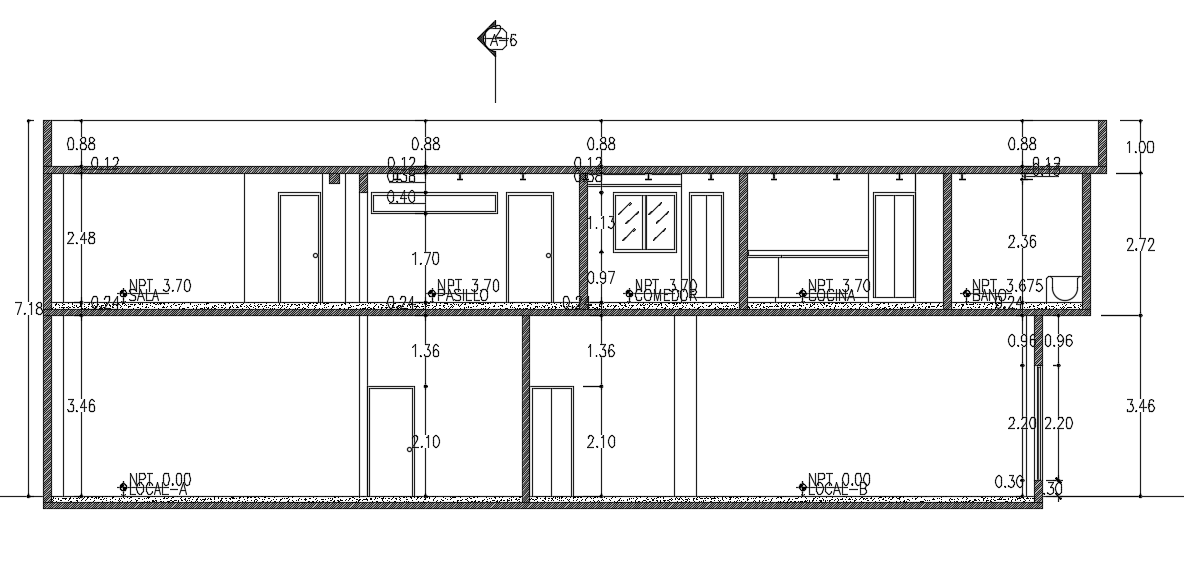
The front cut section view of the 18x11m local commercial shop cum house building
Description
The front cut section view of the 18x11m local commercial shop cum house building is given. This is G+ 1 building with local shops and three houses. Here, two local shops are visible in ground floor. On this residential floor, bathroom, kitchen, dining room, pasillo, and living room is available. The height of the ground floor and first floor building is 7.18m.
Uploaded by:

