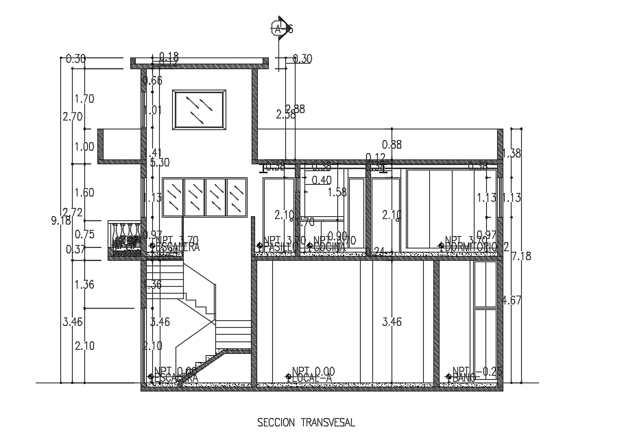
A section view of the 18x11m house cum local shop building
Description
A section view of the 18x11m house cum local shop building. This is right side section view. The attached bathroom, local shop, and staircase view is given on this ground floor building. On this first floor, the master bedroom, kitchen pasillo, and staircase is visible.
Uploaded by:

