18x11m house plan waste water line AutoCAD 2d drawing is given
Description
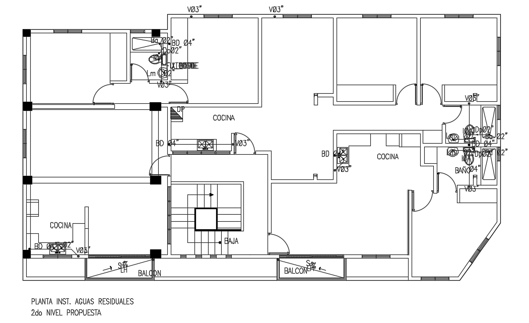
18x11m house plan waste water line AutoCAD 2d drawing is given in this file. In this floor, three houses are available. The man holes are provided and the outlet pipe dimension is 4” PVC. Here, the waste water outline is joined to the ground floor man hole which is used to drain the water from second floor to the drainage.
File Type:
DWG
File Size:
4.1 MB
Category::
Dwg Cad Blocks
Sub Category::
Autocad Plumbing Fixture Blocks
type:
Gold
Uploaded by:

