15x10m architecture apartment house plan is given in this model
Description
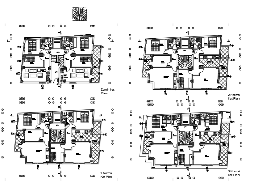
15x10m architecture apartment house plan is given in this model. This is 5 story residential building. Here, ground floor, first floor, second floor, and third floor plans are given. Each floor consists of two houses. In this third floor building, the staircase is provided inside of a home.These houses are consists of the living room, kitchen, master bedroom, children’s bedroom, and common bathroom. This is multifamily apartment building.
Uploaded by:

