18x11m local shop waste water line AutoCAD 2d drawing
Description
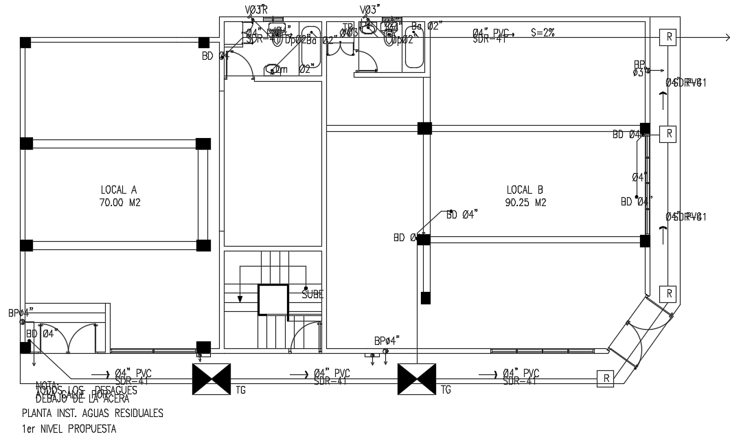
Here, 18x11m local shop waste water line AutoCAD 2d drawing is given in this file. The man holes are provided and the outlet pipe dimension is 4” PVC. Here, the waste water outline is joined to the man hole which is used to drain the water to the drainage.
File Type:
DWG
File Size:
4.1 MB
Category::
Dwg Cad Blocks
Sub Category::
Autocad Plumbing Fixture Blocks
type:
Gold
Uploaded by:

