Floor plan of multistory building in detail AutoCAD drawing
Description
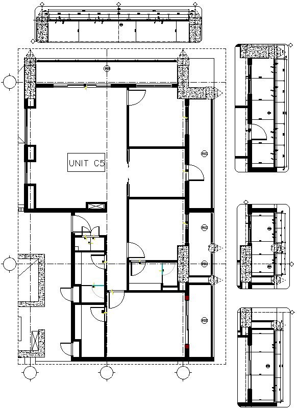
This architectural drawing is Floor plan of multistory building in detail AutoCAD drawing. In this drawing there were kitchen, washing area, balcony, 2 bedrooms, master bedroom with attached toilet-bathroom etc. with detail AutoCAD drawing. For more details and information download the drawing file.
Uploaded by:
viddhi
chajjed

