Town house- ground floor level plan in detail AutoCAD drawing
Description
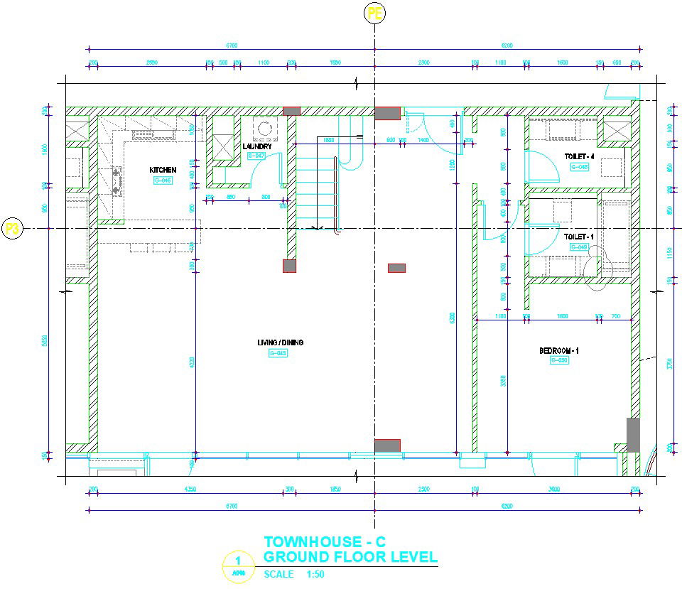
This architectural drawing is Town house- ground floor level plan in detail AutoCAD drawing. In this drawing there were entrance, bedroom, kitchen, wash area, laundry, living room, dining area, toilets etc. are given with details. For more details and information download the drawing file.
Uploaded by:
viddhi
chajjed

