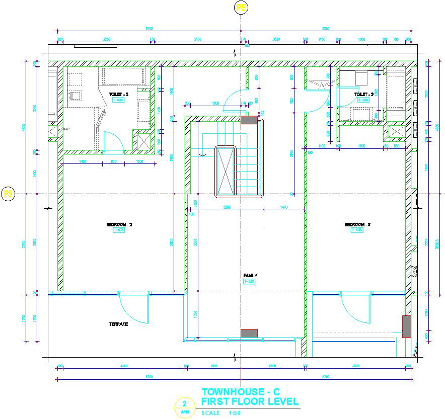
Town house- First floor plan in detail AutoCAD drawing
Description
This architectural drawing is Town house- First floor plan in detail AutoCAD drawing. In this drawing there were two bedrooms, one family room, attached toilet-bathroom, open terrace etc. are given with details. For more details and information download the drawing file.
Uploaded by:
viddhi
chajjed

