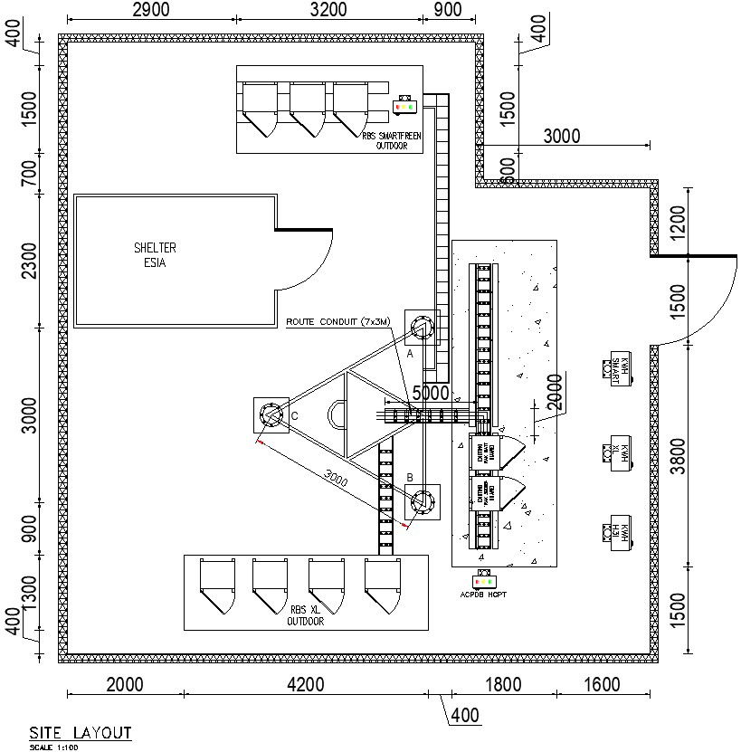
Site layout of tower in AutoCAD drawing, CAD file, dwg file
Description
This architectural drawing is Site layout of tower in AutoCAD drawing, CAD file, dwg file. In this drawing there were existing outdoor cabinet, shelter, route conduit etc. are given with details and dimensions. For more details and information download the drawing file.
Uploaded by:
viddhi
chajjed

