Expansion joint details in AutoCAD 2d, dwg files.
Description
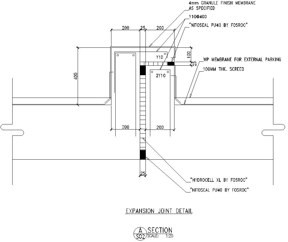
This Architectural Drawing is AutoCAD 2d drawing of Expansion joint details in AutoCAD 2d, dwg files. In building construction, an expansion joint is a mid-structure separation designed to relieve stress on building materials caused by building movement. Building movement at expansion joints is primarily induced by: thermal expansion and contraction caused by temperature changes. sway caused by wind. For more details and information download the drawing file.
File Type:
DWG
File Size:
8.5 MB
Category::
Construction
Sub Category::
Construction Detail Drawings
type:
Gold

Uploaded by:
Eiz
Luna

