2D section of commercial building in detail AutoCAD drawing, dwg file, CAD file
Description
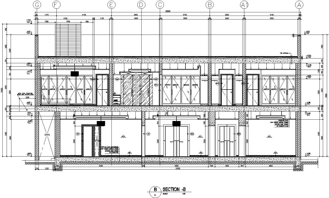
This architectural drawing is 2D section of commercial building in detail AutoCAD drawing, dwg file, CAD file. In this drawing there were mirror panel doors, ceiling design etc. are given with details and dimensions. For more details and information download the drawing file.
Uploaded by:
viddhi
chajjed

