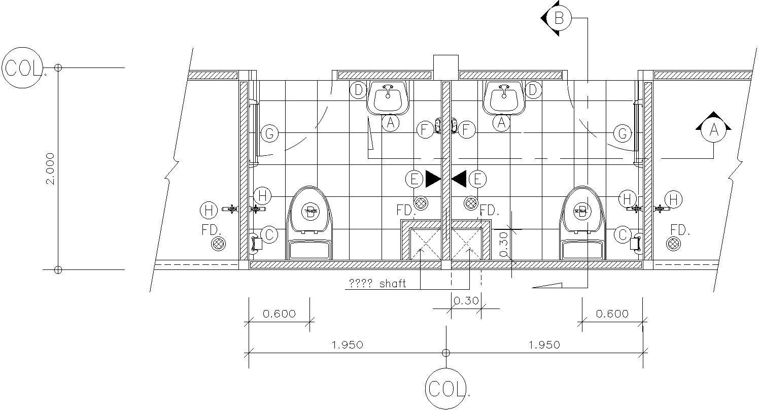
Top View Toilet DWG File Showing Washbasin, Ventilator, and Shaft
Description
This AutoCAD DWG file provides a detailed top view of a toilet layout, showcasing essential elements such as the washbasin, ventilator, and shaft. Designed for architects and interior designers, this drawing offers a comprehensive layout suitable for bathroom planning and design. The file is categorized under "Architectural Bathrooms and Interiors" on Cadbull, a platform dedicated to CAD drawings and designs. This resource is invaluable for professionals seeking precise and ready-to-use CAD files for their projects.
File Type:
DWG
File Size:
1008 KB
Category::
Interior Design
Sub Category::
Architectural Bathrooms And Interiors
type:
Gold
Uploaded by:
viddhi
chajjed

