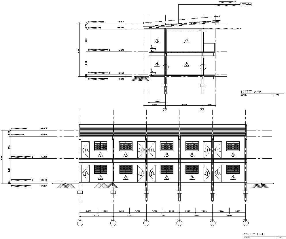
Side elevation of public toilet with detail AutoCAD drawing, CAD file, dwg file
Description
This architectural drawing is Side elevation of public toilet with detail AutoCAD drawing, CAD file, dwg file. In this drawing there were 20m length and height of the floors are 2.70m given. For more details and information download the drawing file.
File Type:
DWG
File Size:
1008 KB
Category::
Interior Design
Sub Category::
Architectural Bathrooms And Interiors
type:
Gold
Uploaded by:
viddhi
chajjed

