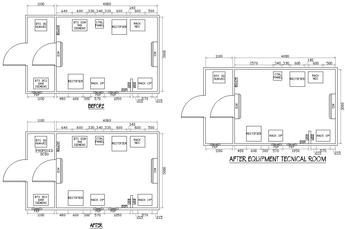
After equipment technical room design with detail AutoCAD drawing, dwg file, CAD file
Description
This architectural drawing is After equipment technical room design with detail AutoCAD drawing, dwg file, CAD file. In this drawing there were rectifier, control panel, 19" rack, etc. are given with details. For more details and information download the drawing file.
Uploaded by:
viddhi
chajjed

